Kraków Złocień Czeczów ⭐️ 3 pok + balkon Nowe Bud Parking Lux

Kraków, Złocień, Henryka i Karola Czeczów

739 000 PLN

Numer oferty11853
Typ transakcjiSprzedaż
Cena739 000 PLN
Powierzchnia53 m2
Cena za m213 943,40 PLN / m2
Liczba pokoi3
Piętroparter/3
Czynsz PLN750
Rok budowy2018
Stan lokaludo zamieszkania
Standard wykończeniabardzo dobry
Typ budynkublok
Klatka schodowaczysta
Rynekwtórny
Materiał budowlanycegła
Forma własnościwłasność
Liczba sypialni2
Liczba łazienek1
Głośnośćciche
Kuchniaaneks
Łazienkaz wc
OknaPCV
Ogrzewaniemiejskie
Wyposażeniemeble, piekarnik, lodówka, pralka, kuchenka
Typ Balkonutaras
Ogrzewaniemiejskie
Kraków Złocień Czeczów ⭐️ 3 pok + balkon Nowe Bud Parking Lux (Kraków, Złocień, Henryka i Karola Czeczów)

Kraków Złocień ul. Henryka i Karola Czeczów // 53 m2 // 3 pokoje + Taras + Miejsce postojowe
NOWE BUDOWNICTWO
We speak english

Zapraszamy do zapoznania się z ofertą przestronnego, ustawnego 3 pokojowego mieszkania na Krakowskim Złocieniu.
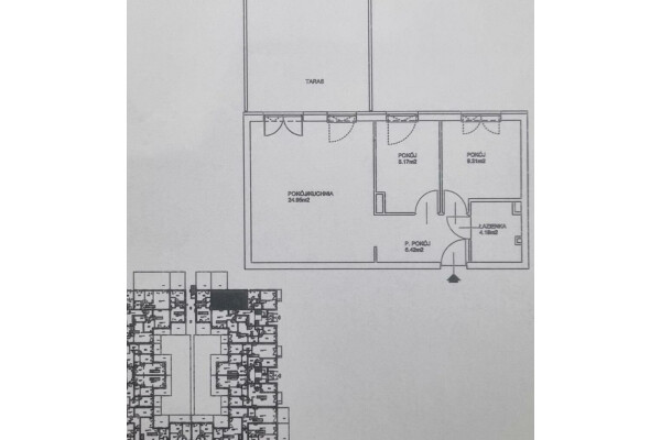
Mieszkanie o powierzchni 53 m2 znajduje się na parterze w 3 piętrowym budynku z 2018 roku.

SKŁAD MIESZKANIA:

- Salon z aneksem kuchennym
- Sypialnia 1
- Sypialnia 2
- Łazienka z WC
- Przedpokój
+ Taras

DODATKOWO:

Do mieszkania przynależy miejsce postojowe w garażu podziemnym za dodatkową opłatą 60000 PLN.

STANDARD:

- mieszkanie w bardzo dobrym standardzie,
- okna PCV,
- klimatyzacja,
- rolety
antywłamaniowe,
- pełna własność z założona Ksiegą Wieczystą,
- miejsce postojowe w garażu podziemnym,

LOKALIZACJA:

Spokojna, zielona okolica, idealna dla rodzin z dziećmi, bądź pod inwestycję. W pobliżu znajdują się: szkoła, przedszkole, żłobek, plac zabaw dla najmłodszych, siłownia na świeżym powietrzu i centrum handlowe (m. in. Rossman, Pepco).
Niewątpliwym atutem lokalizacji nieruchomości, jest pobliska stacja PKP - Szybka Kolej Aglomeracyjna - do najbliższej stacji jest tylko 10 minut spacerem, skąd w około 15 minut można dostać się do centrum miasta Kraków - Główny

Skontaktuj się z nami i umów się na bezpłatną prezentację mieszkania. Pamiętaj, że ceny nieruchomości w większości przypadków podlegają negocjacji.

Posiadamy bazę mieszkań których nie publikujemy w internecie, jeśli chcesz poznać naszą pełną ofertę, zadzwoń.

Zapraszamy do kontaktu!


Treść niniejszego ogłoszenia nie stanowi oferty handlowej w rozumieniu Kodeksu Cywilnego.
Oferta wysłana z programu IMO dla pośredników.
Informacje
Internet Klimatyzacja Domofon Rolety antywłamaniowe
Kraków, Złocień, Henryka i Karola Czeczów

Kontakt